***VERKAUFT*** Landhaus mit ELW & Panoramablick im schönen Inntal / Kiefersfelden
Objektart
Adresse
Objektdaten
Informationen
Ausstattung
Details
--- Diese schöne Immobilie ist nicht mehr verfügbar - gerne merken wir Sie für ähnliche Angebote vor. Wir freuen uns über Ihre Kontaktaufnahme ---
Ein bayerisches Landhaus mit idyllisch gelegenem Hanggrundstück und einem unverbaubarem Berg-Panorma-blick in schöner Ortsrandlage von Kiefersfelden.
Dieses tolle Objekt befindet sich an der Grenze zu Kufstein / Tirol und bietet sich durch die Nähe zum Kaisergebirge auch ideal als Ferien- oder Wochenendhaus für Berg- und Naturfreunde an. Das Anwesen ist dank der erhöhten Hanglage nahezu nicht einsehbar und bietet einen sensationellen Ausblick auf das Kaisergebirge. Ein großer Teil des Grundstücks oberhalb des Gebäudes ist Hang mit Waldbestand.
Das Gebäude wurde im Jahr 1967 in massiver Bauweise errichtet und von der Eigentümerfamilie pfleglich behandelt. Wesentliche Modernisierungen wurden seit Entstehung jedoch nicht durchgeführt, das Objekt wird daher mit Modernisierungsbedarf "als Rohdiamant zum Schleifen" verkauft.
Das Haus ist aktuell in zwei Wohneinheiten und einen Speicher aufgeteilt:
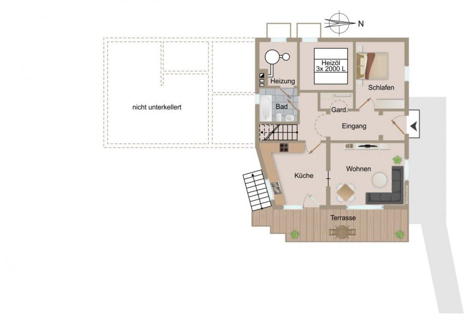
- Im Untergeschoss befindet sich eine 2-Zimmer-Einlieger-Wohnung mit Küche und Bad (rd. 65 qm) - siehe Grundriss Untergeschoss
- Im Obergeschoss befindet sich eine 5-Zimmer-Wohnung mit Küche und Bad über zwei Ebenen (rd. 150 qm) - siehe Grundriss Obergeschoss
- Im Dachgeschoss befindet sich ein großer Speicher - sieh Foto - der Speicher ist bequem über eine Treppe oder auch von außen begehbar
Die Teilung der ELW kann ohne viel Aufwand wieder rückgängig gemacht werden, da nur das Treppenhaus zwischen UG und OG verschlossen wurde.
Zum Anwesen gehören eine sehr großzügige Garage mit überdachtem Stellplatz davor sowie ein Gartenhaus.
Das Haus ist bereits frei und sofort verfügbar.
• sensationeller Ausblick
• große Süd-Ost Terrasse
• Balkon
• großzügige Raumaufteilung
• 2 Badezimmer
• Rollläden
• Öl-Zentralheizung
• große Einzelgarage mit Grube
• überdachter Stellplatz
• Gartenhaus
Kiefersfelden im schönen Inntal - Ortsrandlage nähe Kufstein. Kiefersfelden bietet eine gute Infrastruktur, sämtliche Einkaufsmöglichkeiten, Ärzte und öffentliche Verkehrsmittel befinden sich in unmittelbarer Umgebung.
Der Ort hat einen eigenen Autobahn- sowie Zuganschluss Richtung Kufstein, Innsbruck, Rosenheim, München und Salzburg. Im Ort gibt es mehrere Kindertageseinrichtungen, Kindergärten und eine Grund- und Mittelschule.
Kiefersfelden bietet zahlreiche Möglichkeiten hinsichtlich Kultur, Sport und sonstige Freizeitaktivitäten.
In der Nähe befindet sich der schöne Hechtsee oder Thiersee sowie das Innsola- Schwimmbad. Außerdem gibt es zahlreiche Wanderwege. Kiefersfelden ist der ideale Ausgangspunkt für Wintersportler.
bitte beachten Sie:
• Die farbigen Grundrisse in diesem Exposé sind nicht maßstabsgetreu
• Die im Exposé angegeben Wohnfläche beinhaltet zur Hälfte anteilige Flächen an den Terrassen und dem Balkon
• Energieausweis / Energieverbrauch: Der in diesem Exposé angegeben Energie- Bedarfsausweis und damit verbundener Energie- /Verbrauchswert wurde nicht anhand von tatsächlichen Verbrauchswerten ermittelt wie dies z.B. beim Energie-Verbrauchsausweis der Fall wäre. Beim Bedarfsausweis wird in einem aufwendigen Berechnungsverfahren der theoretische Energieverbrauch eines Gebäudes ermittelt. ---- Der tatsächliche Heizölverbrauch liegt aktuell bei rd. 2.300 Liter Öl im Jahr
________________________________________________
Rechtshinweis: Die im Exposé ausgewiesene Käufercourtage ist mit dem Zustandekommen des Kaufvertrages (notarieller Vertragsabschluss) verdient und fällig. Grunderwerbsteuer, Notar-, Gerichts- und Grundbuchkosten trägt der Käufer. Sämtliche in diesem Exposé genannten Daten und Angaben zuzüglich Preisen, Angaben zu Flächen und Berechnungen sowie Art und Maß der baulichen Nutzung, basieren ausschließlich auf uns erteilten Informationen von Eigentümern und wurden von uns nicht überprüft. Eine Haftung für die Richtigkeit, Vollständigkeit und Aktualität der uns erteilten Angaben können wir deshalb nicht übernehmen. Es obliegt daher unseren Kunden bzw. den Interessenten, die enthaltenen Objektinformationen und Angaben auf ihre Richtigkeit hin zu überprüfen. Alle Immobilienangebote sind freibleibend und vorbehaltlich Irrtümer, Zwischenverkauf- und Vermietung oder sonstiger Zwischenverwertung. Die Wohnflächenangaben im Exposé sind ca. Angaben und beinhalten teilweise anteilige Flächen an Balkonen oder Terrassen. Irrtümer und Tippfehler vorbehalten.
Dieses Exposé ist eine Vorinformation, als Rechtsgrundlage gilt allein der abgeschlossene Kaufvertrag.
Energieausweis (Bedarfsausweis)
285 kWh / (m²*a) Endenergiebedarf
285 kWh / (m²*a) Endenergiebedarf
285 kWh / (m²*a) Endenergiebedarf
Weitere Informationen
| Befeuerung | Öl |
| Energieausweis Baujahr | 1967 |
| Heizung | Zentralheizung |
Ich bin damit einverstanden, dass mir Karten von Google angezeigt werden. Es gelten die Datenschutzbedingungen von Google (https://policies.google.com/privacy).
Ich bin einverstanden